Skip to main content

Can Laurena

Puerto de San Miguel
Venta
  • San Miguel- Construyendo el futuro

Con Can Caliza, Can Laurena y Can Montana queremos cumplir con los más altos estándares en diseño y sostenibilidad,utilizando tecnología moderna y consistente combinada con materiales hechos a mano y seleccionados localmente.

Con vista a la Bahía de San Miguel, cada propiedad tendrá su propio carácter especial y se destacará individualmente,en calidad y creatividad.

Deje que su visión se convierta en nuestra pasión, ¡desbloquee su hogar Blue Pearl!

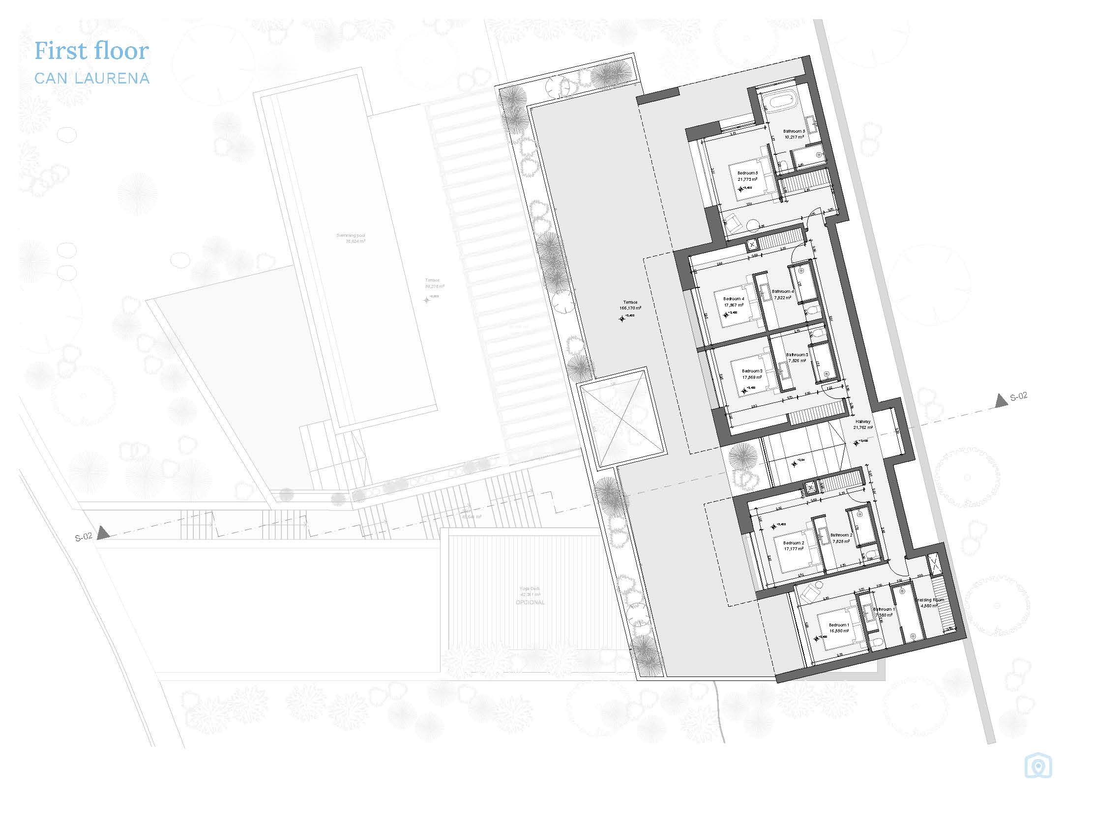
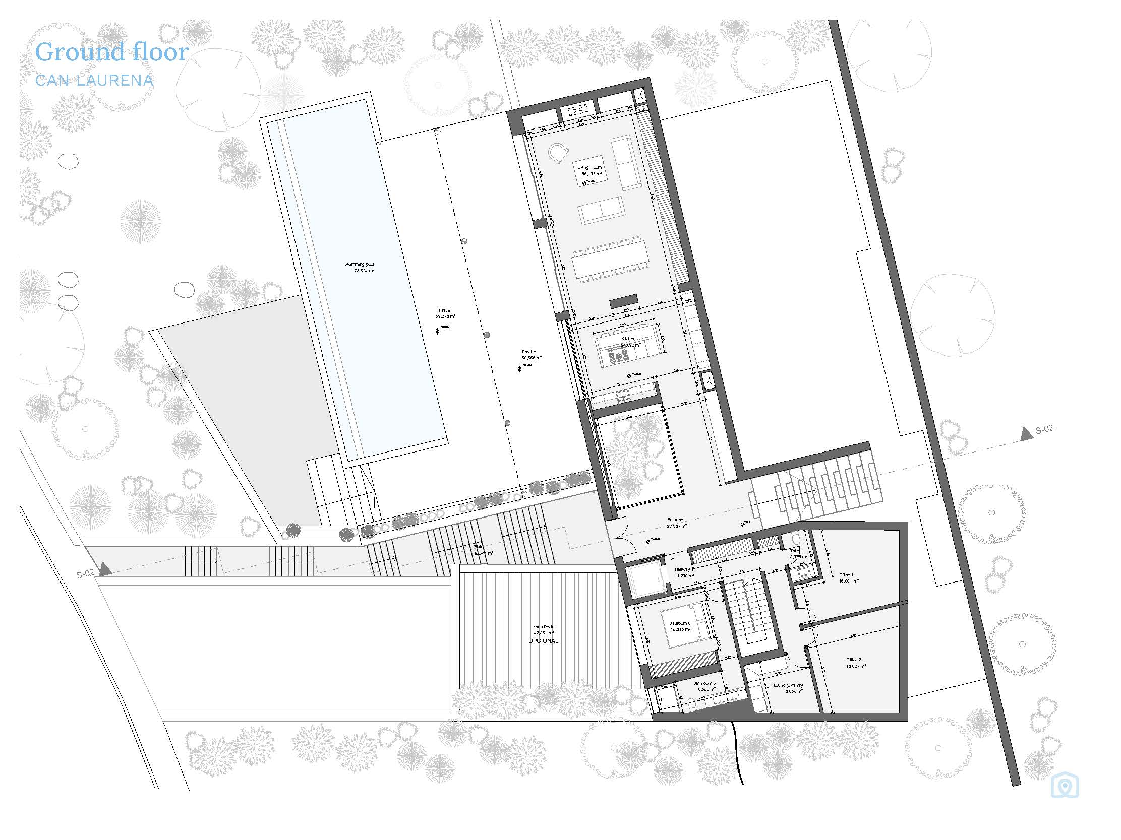
CAN LAURENA

  • 6 dormitorios, 6,5 baños
  • Parcela: 1700 m2

  • Superficie construida 709,34 m2
  • Superficie construida piscina: 100,30 m2

  • Vivienda útil interior: 353,95 m2
  • Sótano interior útil: 143,04 m2
  • Total útil interior: 496,99 m2

  • Útil exterior: 449,81 m2
  • Piscina útil: 73,80 m2
Vivienda
709 m²
Terreno
1.700 m2
Habitaciones
6
Baños
6